• CEDG
  • EXHIBIT
  • PORTFOLIO
  • PROFILE
  • CONTACT
  • //>
 cedg
  • CEDG
  • EXHIBIT
  • PORTFOLIO
  • PROFILE
  • CONTACT
  • //>

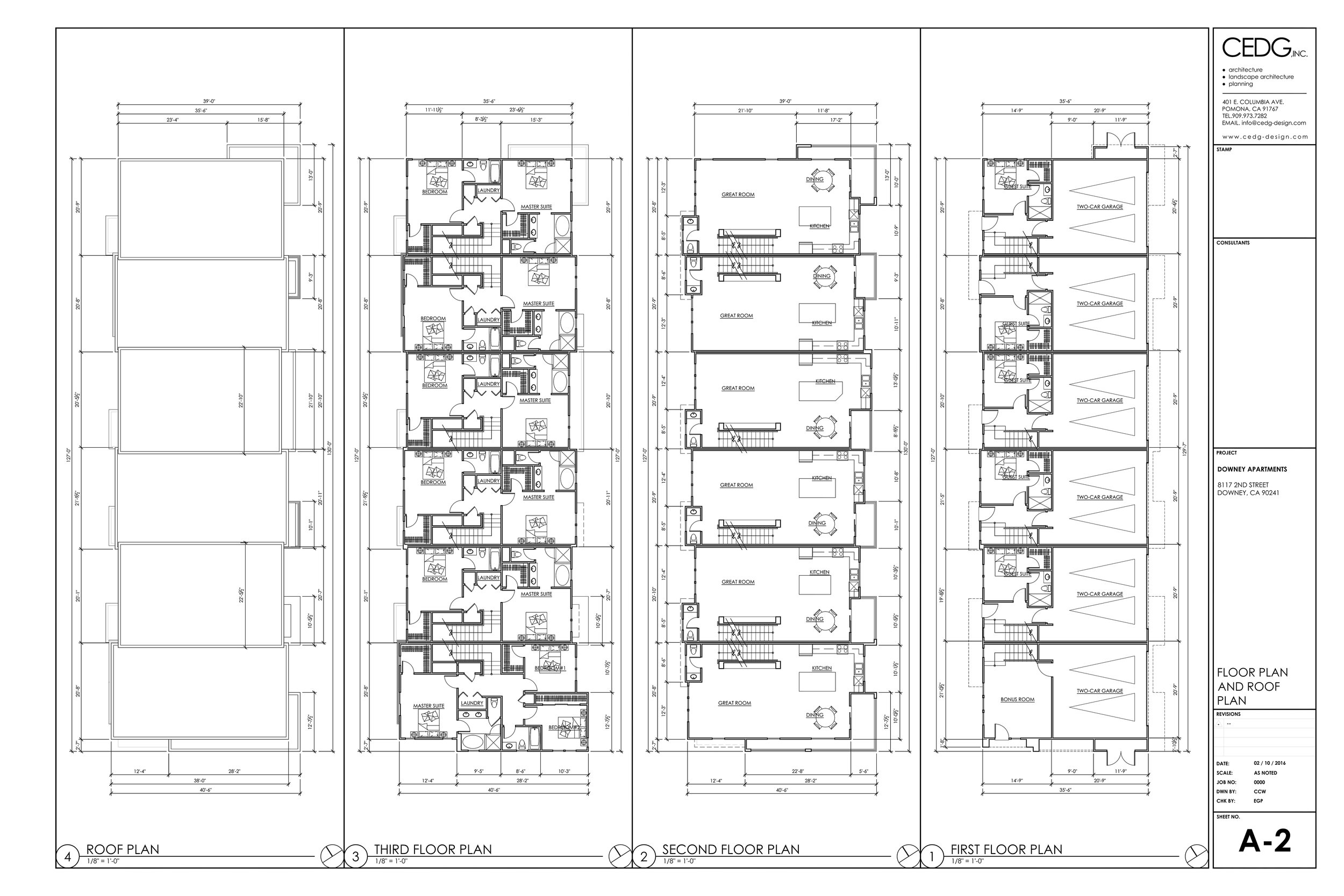
DOWNEY APARTMENTS//

PROGRAM// multi family development

SITE// downey, ca. vacant lot

CLIENT// private developer

SOLUTION// the new multi family development of attached townhouse to be for rent in Downey responds to a tough neighborhood and zoning requirements. CEDG is providing full architecture and landscape services.  With a tight budget in mind, and strict zoning requirement we've used a minimal pallet, maximized natural lighting with a 'push + pull' effect of the facade that helps maximize space and privacy.

STATUS//entitlements + construction documents due right after (did we mention it's a tight timeline?)

3D PERS_Lee Edited.jpg
perspective.jpg
CMB.jpg
downey_site plan.jpg
DOWNEY plans.jpg

creating for our future