• CEDG
  • EXHIBIT
  • PORTFOLIO
  • PROFILE
  • CONTACT
  • //>
 cedg
  • CEDG
  • EXHIBIT
  • PORTFOLIO
  • PROFILE
  • CONTACT
  • //>

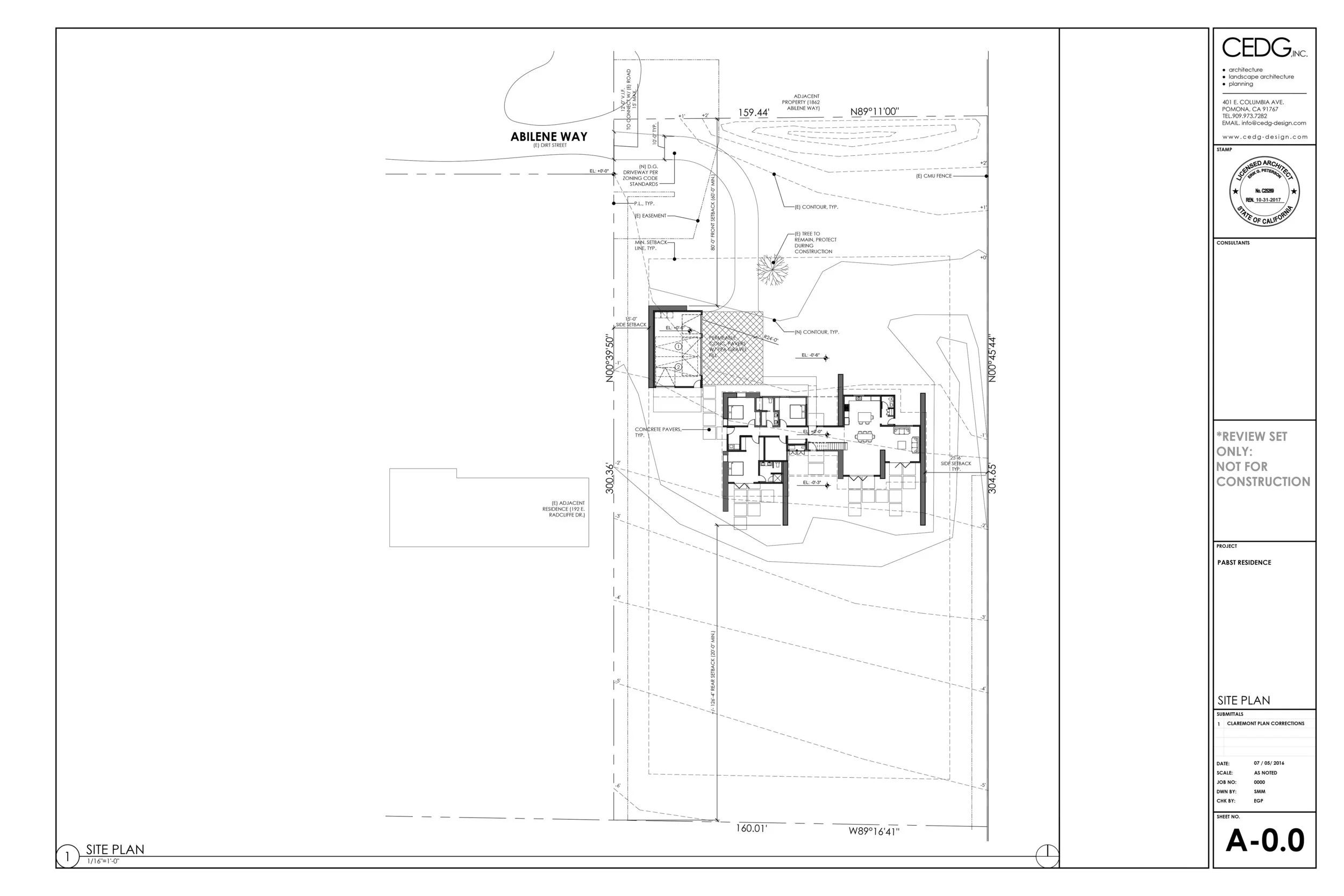
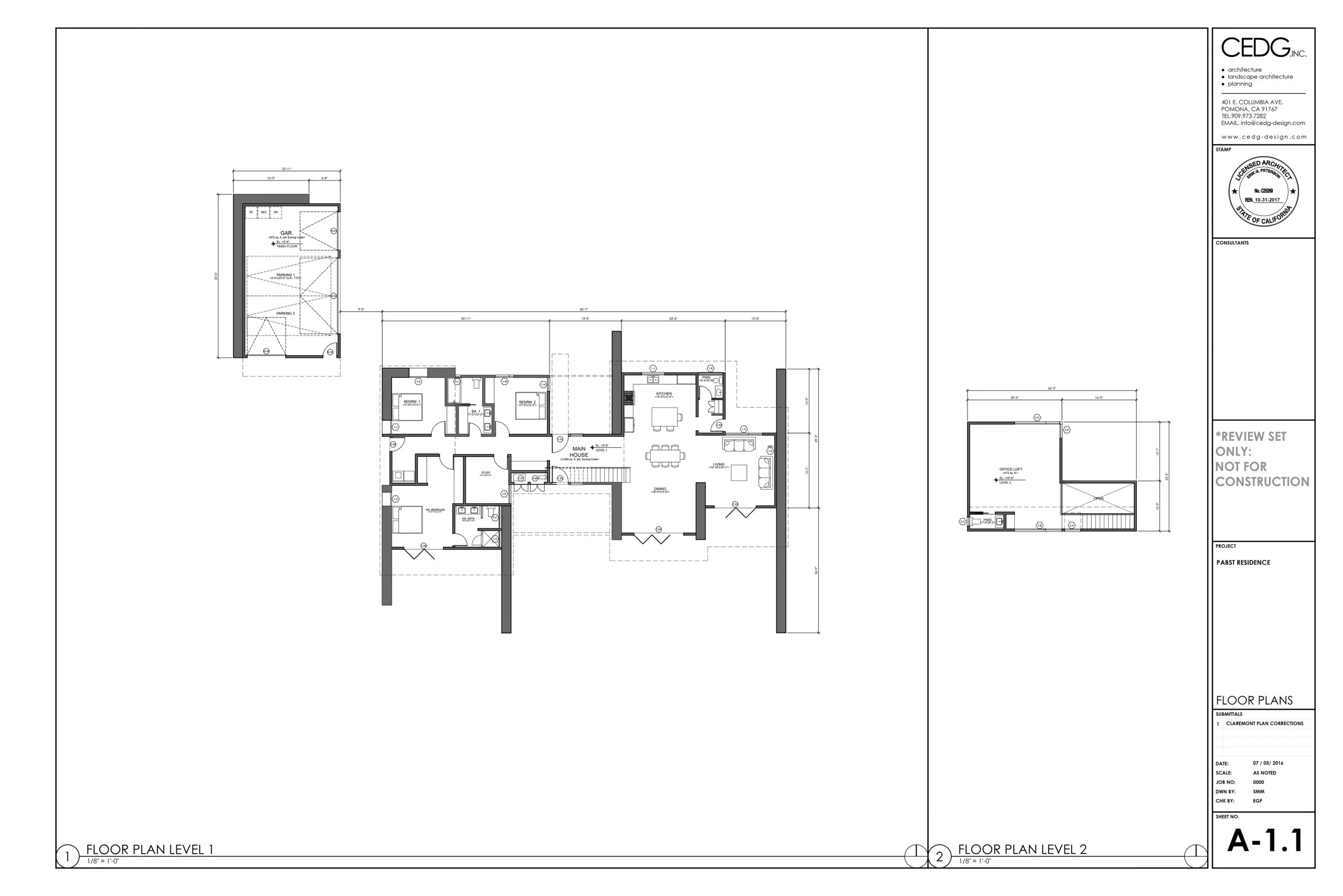
PABST RESIDENCE//

PROGRAM// single family development

SITE// claremont, ca. vacant lot

CLIENT// pabst family

SOLUTION// the new single family development is to fit comfortably within a vacant site.  CEDG is providing design + build + landscape services with our regenerative design concept that will result in a beautiful new home for the Pabst family to enjoy, complete with straw bale walls, a butterfly roof, and high vaulted ceilings.  With a tight budget in mind, we've used a minimal pallet and scope toward a solution that naturally blends into the context.

STATUS//design review

 

 

pabst_parti collage copy.jpg
A-3.3 perspective.jpg
backyard perspective.jpg
A-3.1A north elevation.jpg
A-3.1A west elevation.jpg
material board.jpg
site plan.jpg
floor plan.jpg

creating for our future